Currenlty listing 523 upcoming property auctions in the UK
Land To The West Of Potassels Road, Muirhead, Glasgow, Lanarkshire, G69 9BW
Address
See address
Auction date
23 Jul 2025
Guide price
£150,000
Type
Land
Tenure
Unknown
EPC Rating
Unknown
Status
Ended

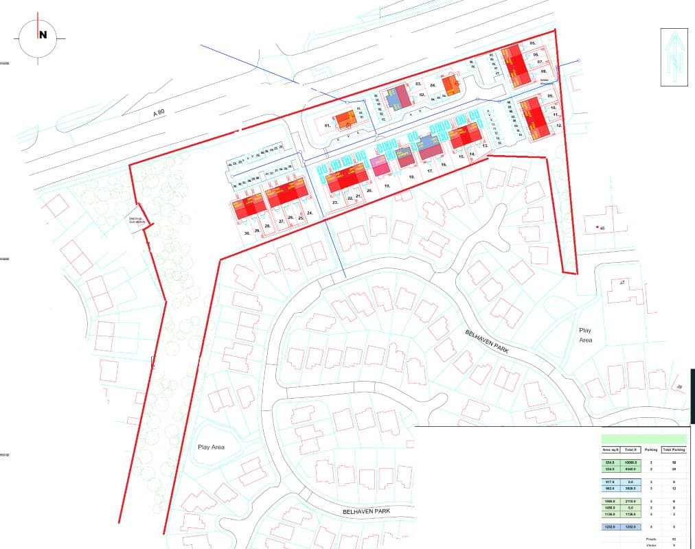
Description
This land in Muirhead offers an excellent opportunity for residential development, with planning consent already approved for 30 houses. Located close to Glasgow, it spans approximately 1.84 hectares.
The location enjoys convenient transport links and local amenities, making it an ideal investment for developers.
Last update: 21 Jun 2025



