Currenlty listing 1,760 upcoming property auctions in the UK

Vacant Commercial Lot 61
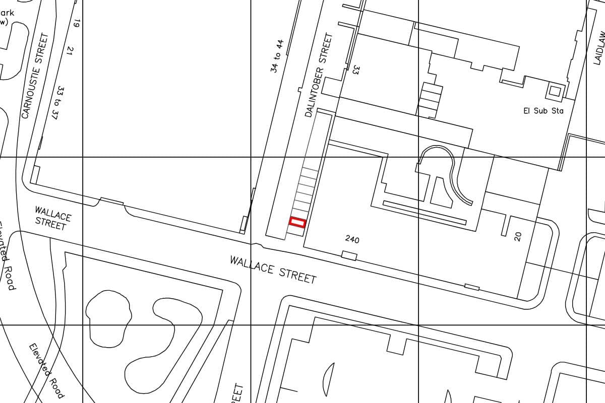
Address
See address
Auction date
30 Apr 2026
Guide price
£6,000
Type
Commercial
Tenure
Freehold
EPC Rating
Unknown
Status
Upcoming

Description
Available vacant commercial parking space located in Glasgow City Centre, ideal for local businesses or as a rental investment.
- Freehold ownership
- Potential rental income of £1,800 per annum
Last update: 24 Apr 2026




