Currenlty listing 1,052 upcoming property auctions in the UK
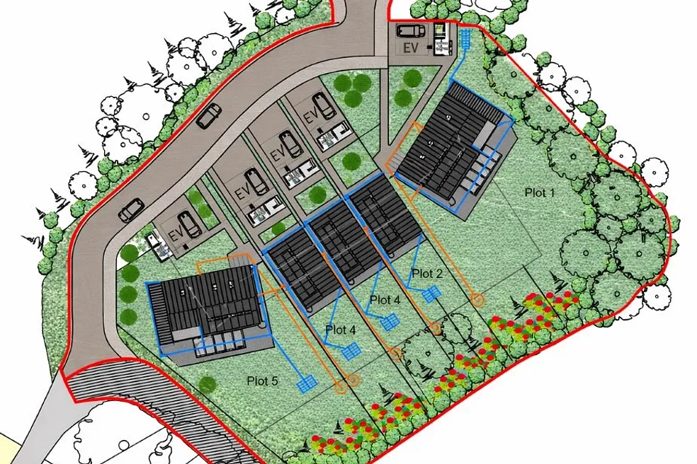
A Portfolio of Eleven Plots of Land and Roadways
Address
See address
Auction date
30 Mar 2026
Guide price
£0
Type
Land
Tenure
Freehold
EPC Rating
Unknown
Status
Upcoming

Description
This auction features a portfolio consisting of eleven plots of land and roadways. The site area shown in the provided plan is for indicative purposes only, with prospective buyers advised to verify specific measurements and any potential development opportunities.
Important Notice:Buyers are encouraged to consult the Special Conditions of Sale in the Legal Pack for additional charges related to the purchase.
Administration Charge: A non-refundable £1,200 inc VAT is applicable upon the successful fall of the virtual gavel.
Last update: 28 Mar 2026




