Currenlty listing 988 upcoming property auctions in the UK

8 bed Building Plot Land For Auction
Address
See address
Auction date
04 Mar 2026
Guide price
£175,000
Type
Land
Tenure
Freehold
EPC Rating
Unknown
Status
Ended

Description
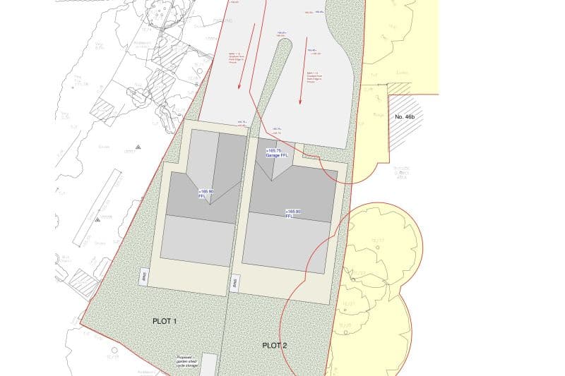
- To be sold under auction terms
- Full planning permission granted
- Cheshire East Council planning ref 23/4832M
- GDV estimated at £1,104,000
- Both properties spanning just over 1700 sqft
- Substantial plot
An exciting opportunity to acquire this parcel of land with planning permission for two, four-bedroom detached houses approached via a private drive. Located in a well-established residential area with a gross development value (GDV) of approximately £1,104,000, it’s ideal for developers or investors. The properties are designed with modern spaces, large bedrooms, and ample outdoor space.
Last update: 14 Feb 2026





