Currenlty listing 1,411 upcoming property auctions in the UK

LONG LEASEHOLD COMMERCIAL INVESTMENT COMPRISING A SHOP
Address
See address
Auction date
19 Feb 2026
Guide price
£165,000
Type
Commercial
Tenure
Leasehold
EPC Rating
B
Status
Upcoming

Description
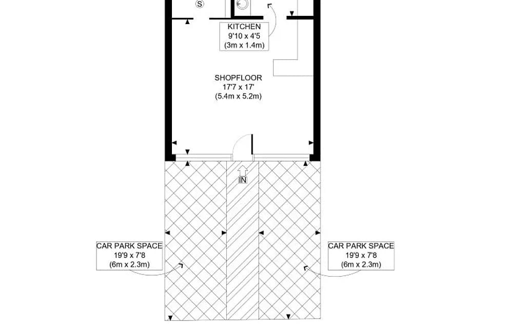
This property comprises a ground floor shop with forecourt parking suitable for two cars, located within a local parade that includes a Tesco Express. It is conveniently positioned just off St Edward's Way, which is part of the ring road around Romford town centre, and is approximately half a mile from Romford station.
Details include:- Long Leasehold: 999 years from completion- Ground Floor Shop: GIA 391 sq ft (36.3 sq m)- Rental income of £18,000 per annum, with a lease set for 10 years starting from 30th October 2025.- The property benefits from a three-month rent deposit of £4,500.
Last update: 31 Jan 2026





