Currenlty listing 1,357 upcoming property auctions in the UK

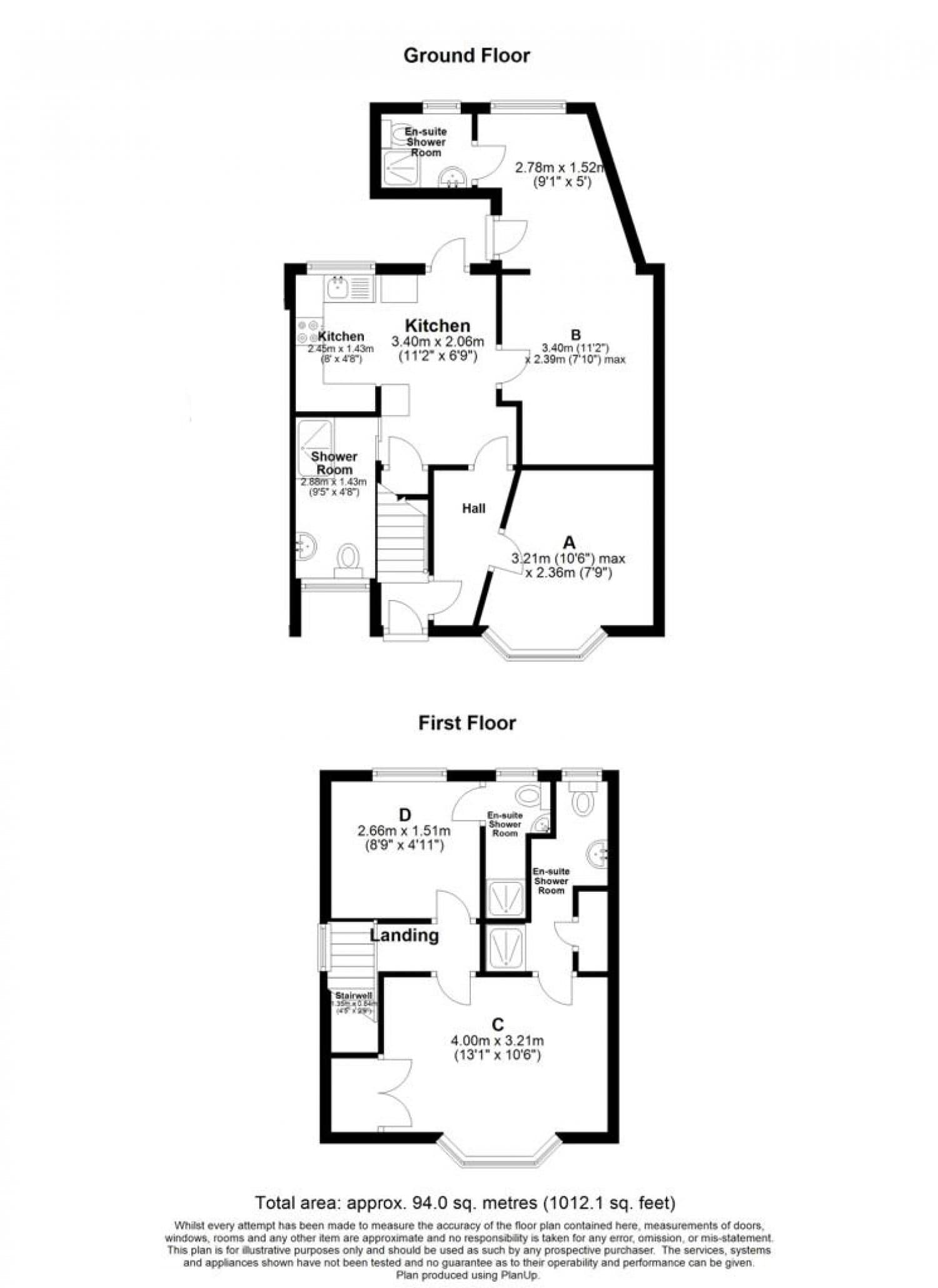
4 Bedroom HMO Investment
Address
See address
Auction date
09 Dec 2025
Guide price
£140,000
Type
Other
Tenure
Freehold
EPC Rating
Unknown
Status
Ended

Description
The property is a 4 bedroom House in Multiple Occupation (HMO), with 3 rooms currently rented and one vacant offering investment potential. It generates an annual rent of £21,540, equivalent to approximately 15.39% of the guide price.
- Approximately 94 sq m (1,012 sq ft)
- Asset management potential with letting the vacant room
Last update: 21 Nov 2025





