Currenlty listing 1,894 upcoming property auctions in the UK

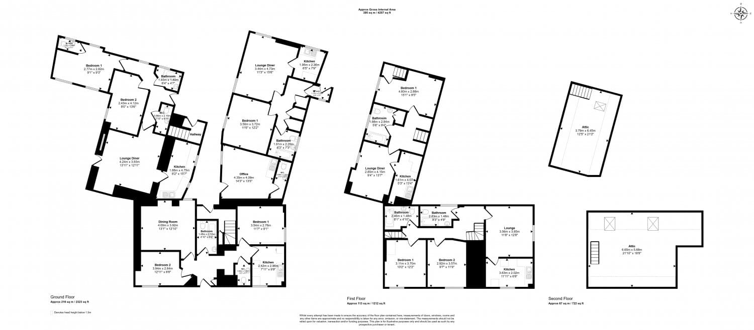
Substantial Grade II Listed Property
Address
See address
Auction date
09 Dec 2025
Guide price
£475,000
Type
Other
Tenure
Freehold
EPC Rating
D
Status
Ended

Description
This impressive Grade II listed property spans approximately 4250 sq ft. It comprises five self-contained flats (2 one bedroom and 3 two bedrooms), plus office or ancillary space. The property offers outdoor space and a parking area, and requires some modernization. It has potential for development, subject to necessary permissions, and is vacant.
Last update: 21 Nov 2025





