Currenlty listing 1,305 upcoming property auctions in the UK
Residential Investment Property
Address
See address
Auction date
24 Nov 2025
Guide price
£137,000
Type
Flat
Tenure
Leasehold
EPC Rating
C
Status
Upcoming

Description
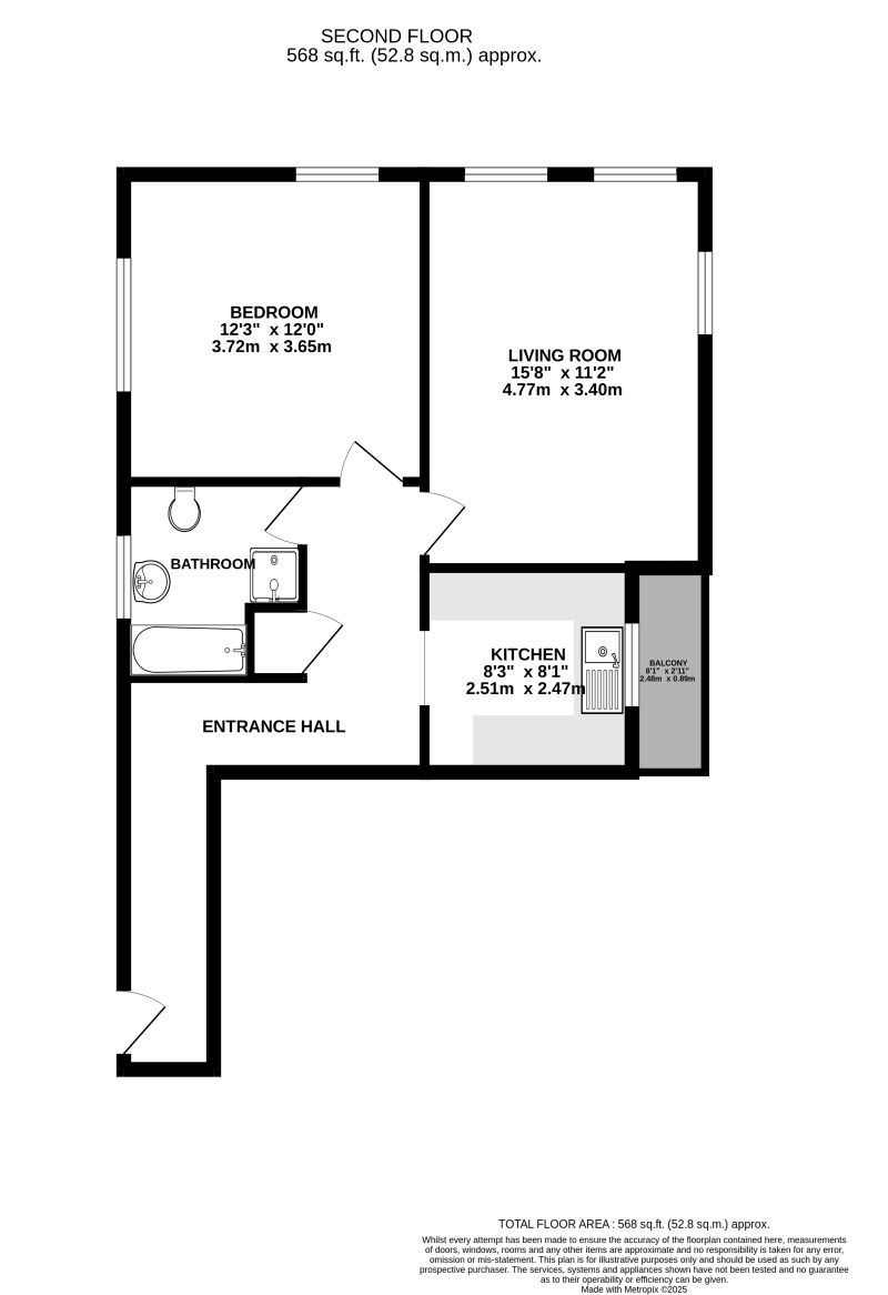
Auction House Birmingham is pleased to offer this **TWO** bedroom flat located in Shirley, Solihull. The property requires internal renovations but presents an opportunity to create a functional living space with various amenities nearby. An internal viewing is highly recommended.
- Accommodation includes: Hallway, Kitchen/Diner, 2 Bedrooms, En-suite, Family Bathroom, and Hallway Storage.
- Leasehold: 999 Years from 1 January 1999.
- Buyers Premium: £1250 plus VAT.
- Administration Fee: £1440 including VAT.
Last update: 07 Nov 2025


