Currenlty listing 1,357 upcoming property auctions in the UK

Substantial Freehold Former Retail Warehouse
Address
See address
Auction date
25 Nov 2025
Guide price
£595,000
Type
Other
Tenure
Freehold
EPC Rating
Unknown
Status
Ended

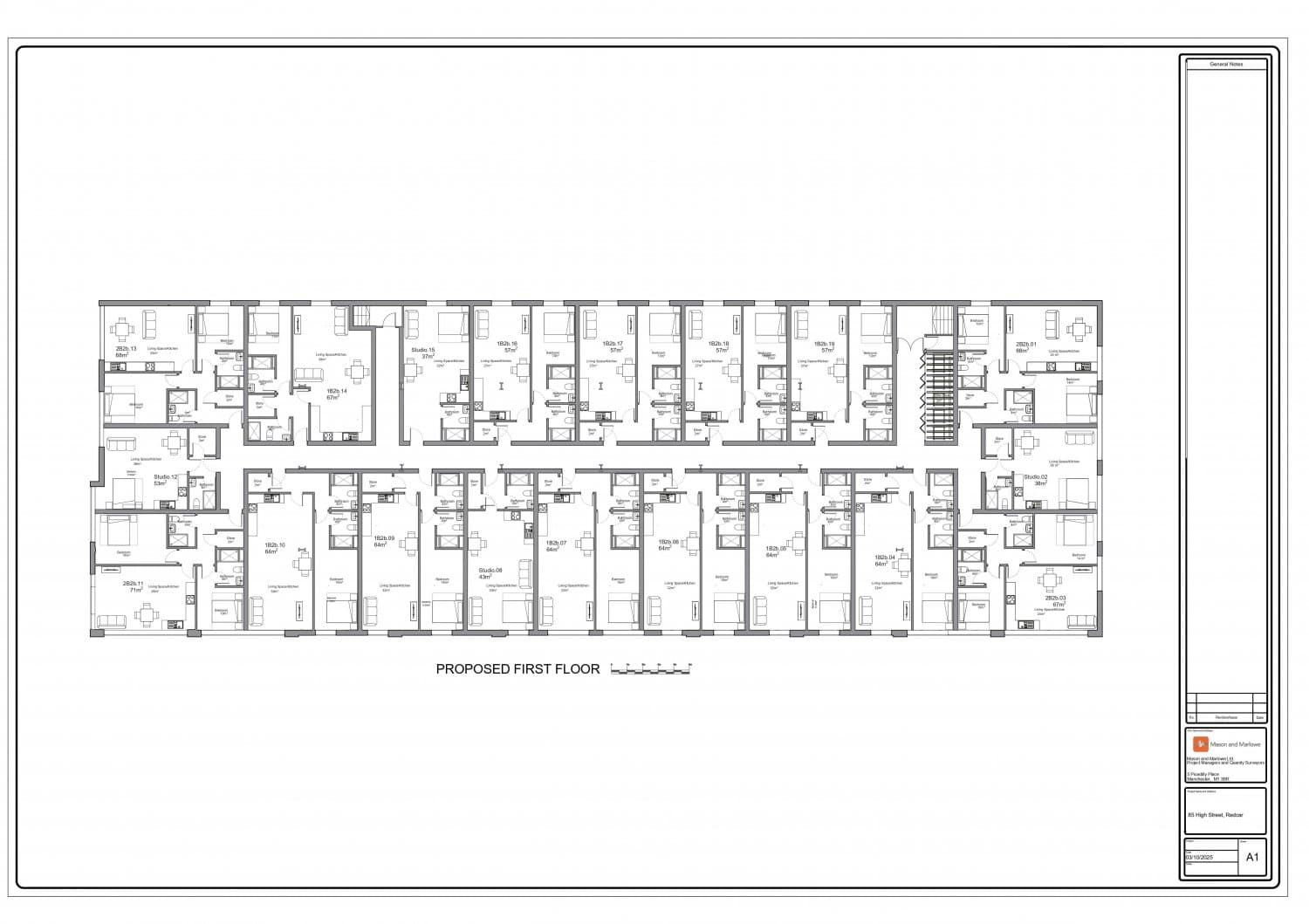
Description
The property is a substantial former retail warehouse presenting change of use and development opportunities. A planning application has been submitted for 19 apartments, including 4 two-bed, 11 one-bed, and 4 studio flats, along with 5 commercial units on the ground floor. It offers full vacant possession and comprises approximately 2,675.70 sq m (28,801 sq ft).
- Located in a prominent corner position
- Low capital value per square foot (£20.66 psf)
Last update: 04 Nov 2025

