Currenlty listing 1,357 upcoming property auctions in the UK

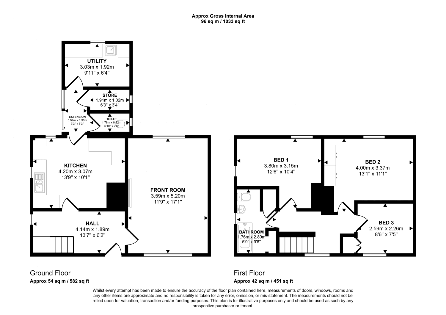
Three Bedroom Semi Detached House
Address
See address
Auction date
05 Nov 2025
Guide price
£220,000
Type
House
Tenure
Freehold
EPC Rating
Unknown
Status
Ended

Description
This semi detached house features three bedrooms and requires modernisation. It comes with a front and rear garden, and has potential for extension, subject to necessary consents. Located conveniently near shopping and recreation areas in Pulloxhill and Flitwick, the property is currently vacant.
Last update: 24 Nov 2025





