Currenlty listing 1,357 upcoming property auctions in the UK

1-3 Market Wells
Address
See address
Auction date
21 Oct 2025
Guide price
£225,000
Type
Commercial
Tenure
Leasehold
EPC Rating
Unknown
Status
Ended

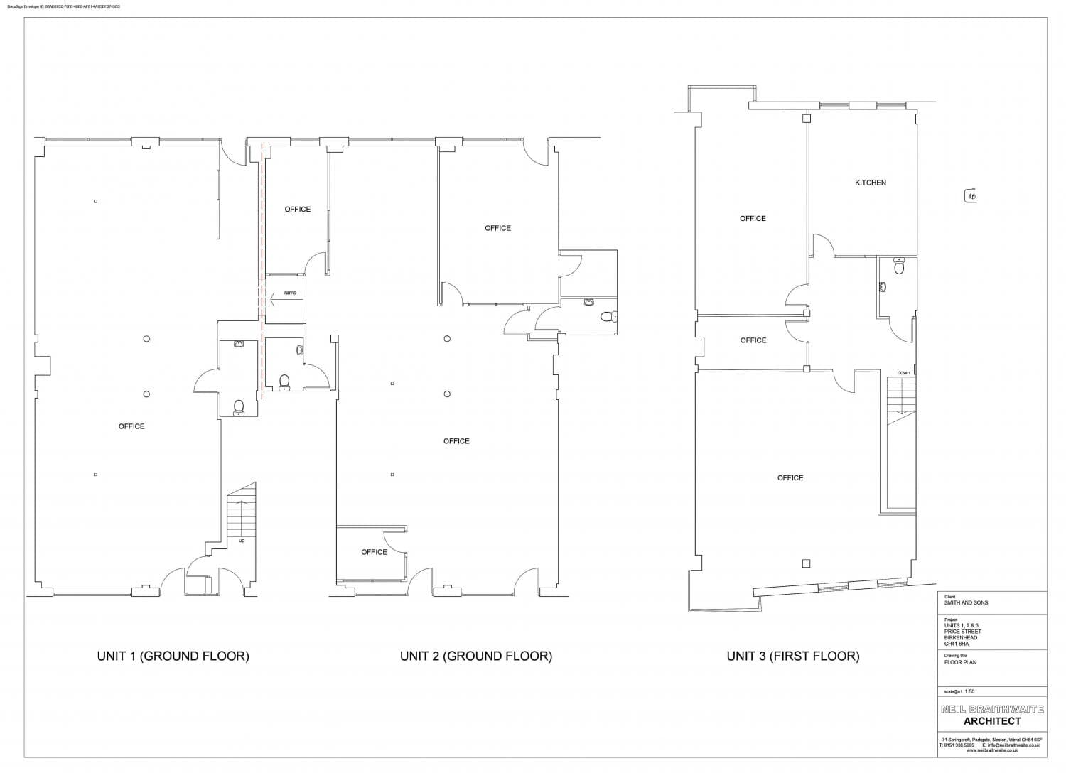
Description
This property includes three office units across the ground and first floors, with a total area of approximately 5,347 square feet.
- Investment opportunity with a rental income of £35,000 annually, offering a gross initial yield of 15.5% on the guide price.
- Currently let to Change, Grow, Live for a term starting December 2022.
Last update: 09 Oct 2025





