Currenlty listing 1,357 upcoming property auctions in the UK

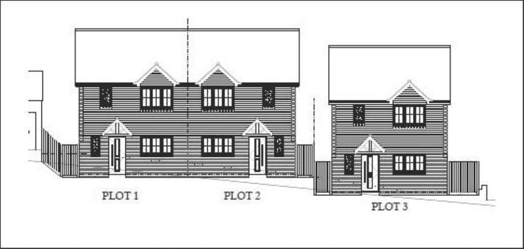
Land With Planning For Three Dwellings
Address
See address
Auction date
30 Oct 2025
Guide price
£250,000
Type
Land
Tenure
Freehold
EPC Rating
Unknown
Status
Ended

Description
This is a freehold parcel of land situated in a well-established residential area of Crowborough. It is conveniently close to the Crowborough railway station and various local amenities.
Planning Permission has been granted by Wealden District Council for the construction of three dwellings, including a pair of semi-detached homes and one detached home, as per reference: WD/2025/0894/F.
Each plot will offer modern accommodations designed for comfortable living with various amenities.
Last update: 09 Oct 2025





