Currenlty listing 1,357 upcoming property auctions in the UK

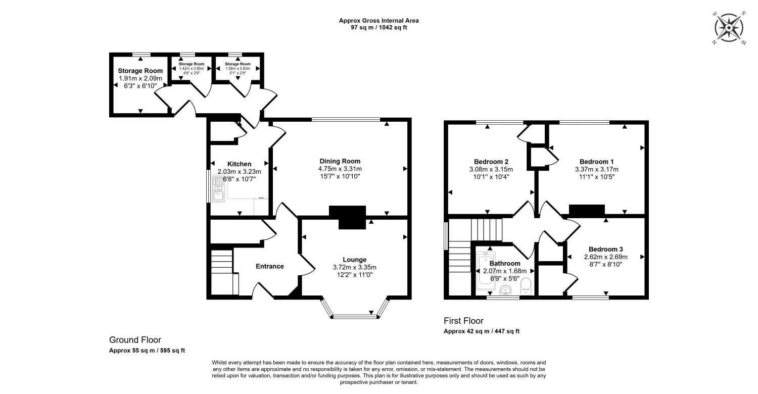
Three Bedroom Semi Detached House
Address
See address
Auction date
21 Oct 2025
Guide price
£155,000
Type
House
Tenure
Freehold
EPC Rating
C
Status
Ended

Description
This semi-detached house includes three bedrooms and is in need of modernisation. It features front and rear gardens, and is situated conveniently for St. Neots town centre and the railway station. There is also potential for extension, pending necessary permits.
Last update: 07 Oct 2025





