Currenlty listing 1,357 upcoming property auctions in the UK

Land with Planning Permission Granted for 6 Apartments with Parking
Address
See address
Auction date
11 Oct 2023
Guide price
£195,000
Type
Land
Tenure
Freehold
EPC Rating
Unknown
Status
Ended

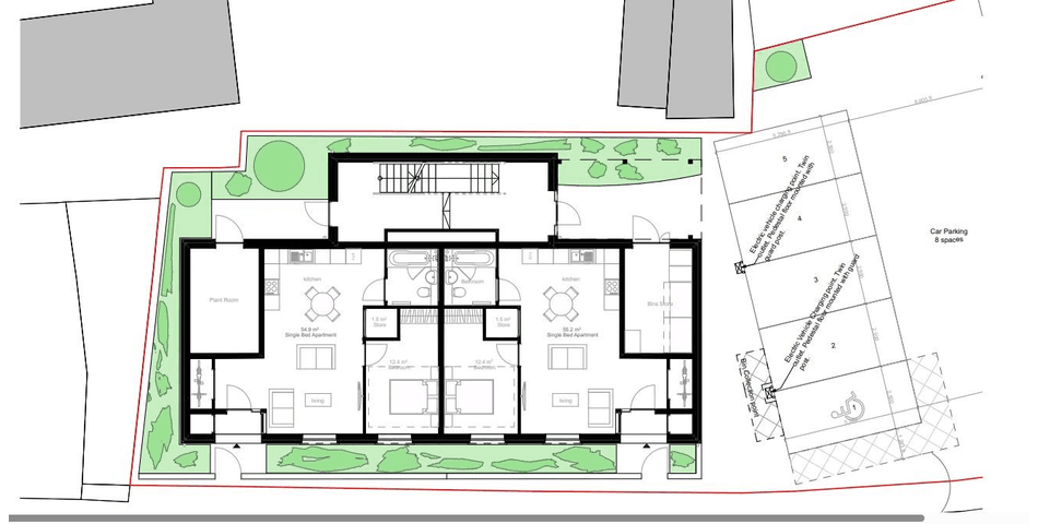
Description
Planning permission has been approved for six apartments including parking and EV charging points. The anticipated gross development value exceeds £850,000. The site is conveniently located close to Stourbridge Town, which offers excellent transport links to Birmingham, as well as being near Wordsley Green and Kingswinford Village, both of which feature a variety of amenities such as shops, doctors, pubs, and restaurants. Notable primary and secondary schools are also within a short distance.
Last update: 02 Oct 2025





